解剖实验室一体化建设工程案例通讯
今年来又有一批公安、医学院将投入使用以菲兰高标准建设的实验室,菲兰品牌得到越来越多专业用户的信赖。
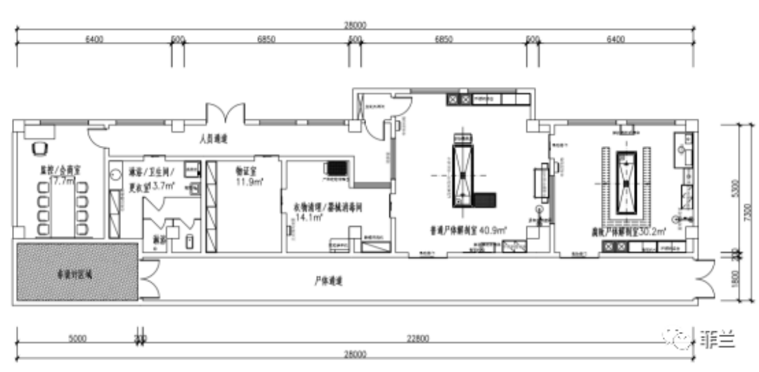
杭州市公安局余杭分局


刑事技术解剖室布局图:物证室、普通尸体解剖室、腐败尸体解剖室。家属接待室、备用室、耗材室、操作室、X光室、淋浴卫生间、器械室、更衣室、办公室、库房。

杭州市公安局临安分局

L型尸体解剖台

福州市公安局闽侯分局


丽水市景宁县公安局


溧阳市公安局


泰安市公安局

南方医科大学司法鉴定中心

皖南医学院

今年来又有一批公安、医学院将投入使用以菲兰高标准建设的实验室,菲兰品牌得到越来越多专业用户的信赖。
杭州市公安局余杭分局


刑事技术解剖室布局图:物证室、普通尸体解剖室、腐败尸体解剖室。家属接待室、备用室、耗材室、操作室、X光室、淋浴卫生间、器械室、更衣室、办公室、库房。

杭州市公安局临安分局

L型尸体解剖台

福州市公安局闽侯分局


丽水市景宁县公安局


溧阳市公安局


泰安市公安局

南方医科大学司法鉴定中心

皖南医学院

